Beschrijving
Ruime en luxe hoekwoning met garage in kindvriendelijke wijk met energielabel B
Bent u op zoek naar een instapklare en ruime hoekwoning met garage in een rustige, kindvriendelijke buurt? Dan is dit dé woning voor u. Met een woonoppervlakte van 153 m², 5 slaapkamers en een inhoud van 589m³ biedt deze woning alle ruimte en comfort die u zich kunt wensen voor een modern gezinsleven. De ligging is ideaal, met winkels, scholen, sportverenigingen en openbaar vervoer op korte afstand. Ook de uitvalswegen zijn snel en eenvoudig bereikbaar.
Hal:
Bij binnenkomst komt u in een ruime hal met een moderne toiletruimte en een meterkast. Vanuit de hal loopt u door naar de sfeervolle en royale woonkamer welke aan de linkerzijde een extra speel/slaapkamer heeft.
Woonkamer
De zeer ruime woonkamer is licht en uitnodigend dankzij meerdere raampartijen en biedt volop ruimte voor een royale zithoek en een comfortabele eethoek. De open indeling zorgt voor een prettige verbinding met de royale open luxe keuken.
De sfeervolle houtkachel vormt een warm en gezellig middelpunt en draagt bij aan een aangename ambiance, ideaal voor lange avonden thuis. Via de woonkamer is er directe toegang tot de tuin. De overkapping maakt het mogelijk om het hele jaar door comfortabel van het buitenleven te genieten, beschut tegen regen en felle zon.
Keuken:
De keuken is het kloppend hart van deze woning, een stijlvolle en praktische leefruimte waar koken en samenzijn perfect samenkomen. De luxe open keuken is ontworpen met oog voor detail en comfort, en beschikt over een modern kookeiland dat niet alleen extra werk- en bergruimte biedt, maar ook een gezellige plek vormt om aan te schuiven voor een kop koffie of een goed gesprek tijdens het koken.
Uitgevoerd in een strak design en met hoogwaardige materialen, is deze keuken van alle gemakken voorzien. De inductiekookplaat met geïntegreerde afzuiging zorgt voor een open, ruimtelijk gevoel zonder hinderlijke afzuigkap. Daarnaast beschikt de keuken over een oven en een magnetron, een ingebouwde vaatwasser en een royale koelkast. Dankzij de slimme indeling van kasten en lades is er volop opbergruimte, waardoor alles altijd netjes en overzichtelijk blijft.
Of u nu een fanatieke thuiskok bent of gewoon houdt van gezelligheid tijdens het eten bereiden, deze keuken is een plek waar u graag tijd doorbrengt.
Slaapkamer:
Op de begane grond is de woning aan de zijkant uitgebouwd en voorzien van een bijzonder veelzijdige ruimte. Deze multifunctionele uitbouw beschikt over een praktische bergzolder en een kelder op stahoogte en is inpandig bereikbaar vanuit de woonkamer. Dankzij de royale opzet is de ruimte ideaal te gebruiken als kantoor aan huis, werkruimte, extra slaapkamer of speelkamer. Bovendien zijn hier de aansluitingen voor de wasapparatuur aanwezig, wat het geheel extra functioneel maakt.
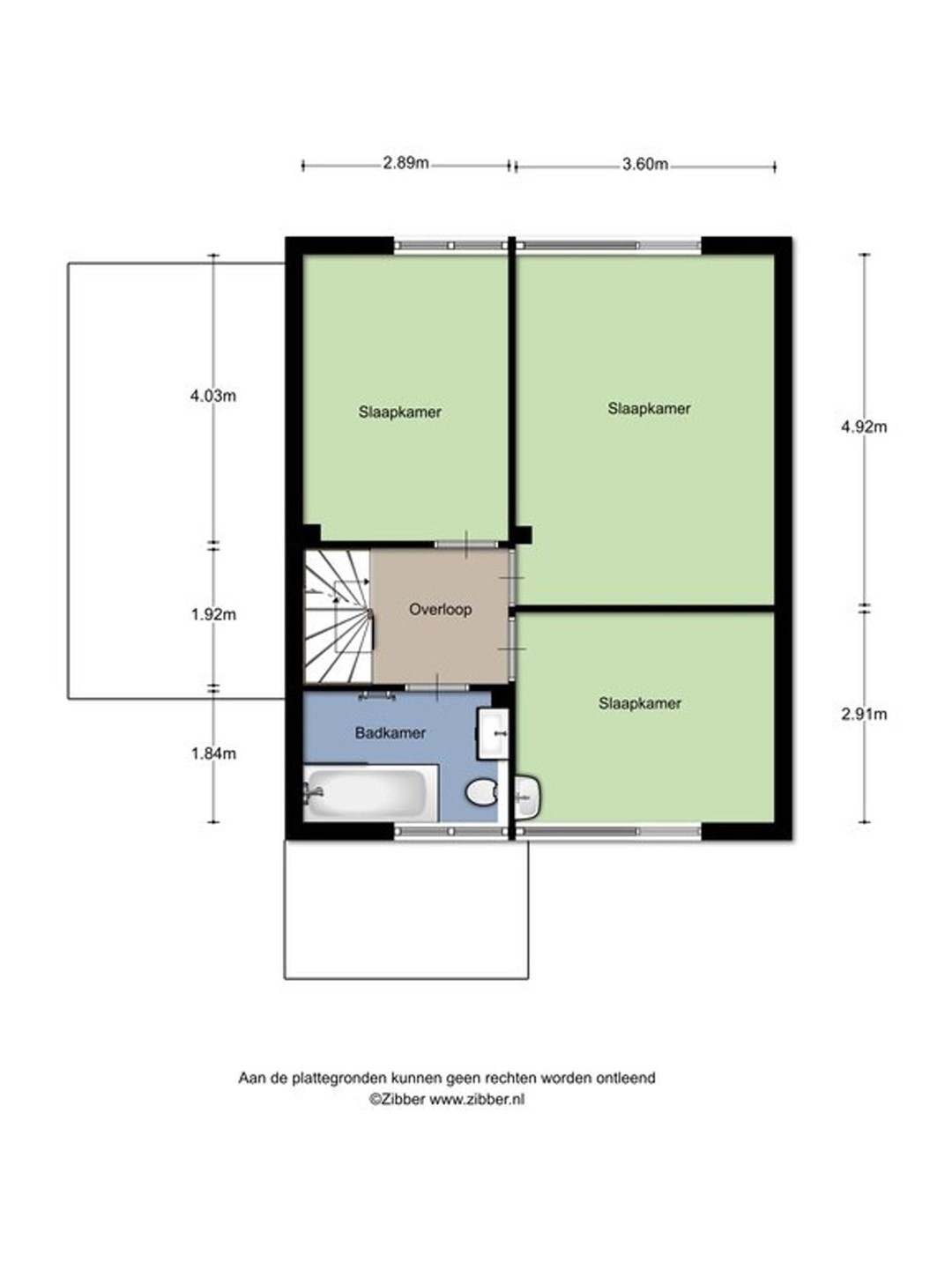
Eerste verdieping:
Op de eerste verdieping valt meteen op hoeveel ruimte deze woning biedt. De overloop geeft toegang tot drie bijzonder ruime slaapkamers, die elk voldoende plek bieden voor een groot bed, kasten en eventueel een bureau of zithoek. De grote ramen zorgen ook hier voor veel natuurlijk licht, wat de kamers een open en frisse uitstraling geeft.
Badkamer:
Geheel betegelde badkamer met vloerverwarming. Badkamer met ligbad voorzien van regen- en handdouche met thermostaatkraan en een 2e toilet en badkamermeubel met wasbak. Een heerlijke plek om even tot rust te komen.
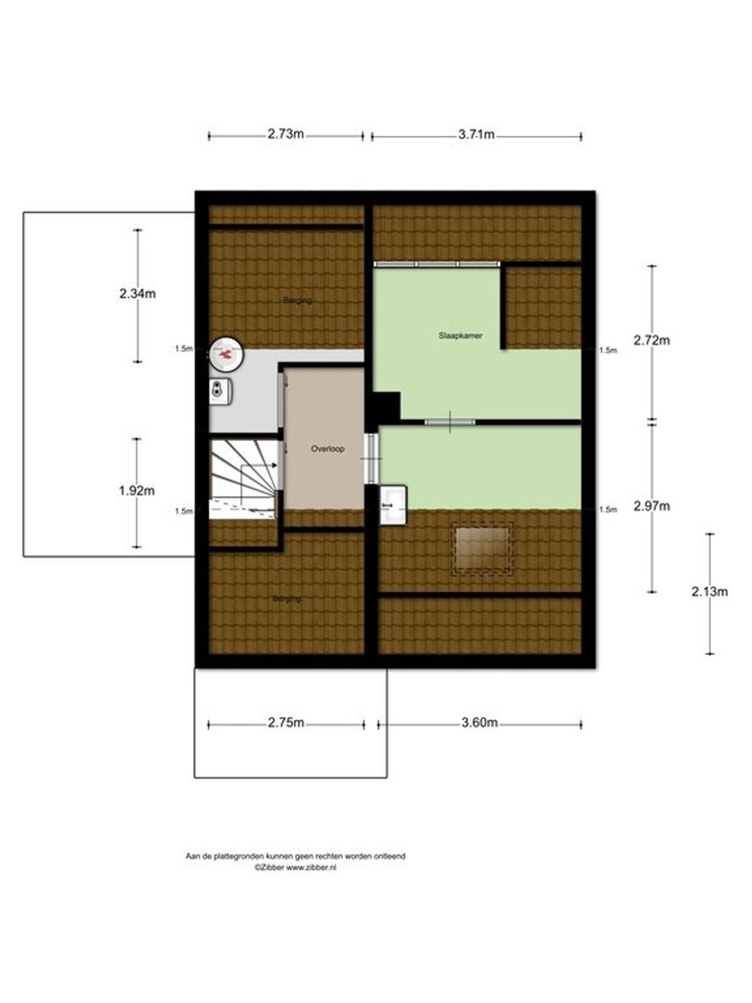
Tweede verdieping:
Overloop met de cv-combiketel (2012), aansluitingen voor wasapparatuur en praktische bergruimte. Vanaf hier bereik je slaapkamer met dakkapel, momenteel verdeeld in twee slaapkamers. Ideaal voor wie een extra slaapkamer werkkamer of hobbyruimte wil creëren.
De woning is volledig geïsoleerd en voorzien van HR++ dubbele beglazing en grotendeels kunststof kozijnen, wat zorgt voor optimaal wooncomfort en lage energielasten. In 2019 is bovendien de volledige begane grondvloer constructief vernieuwd.
Garage/ parkeren
Nooit meer zoeken naar een plekje! Deze woning beschikt over een eigen vrijstaande stenen garage met elektrische overheaddeur biedt volop ruimte voor auto, fietsen en opslag een echte meerwaarde!
Tuin:
De tuin is werkelijk een verlengstuk van de woning strak aangelegd, sfeervol ingericht en afgewerkt met oog voor detail. Hier is gekozen voor kwaliteit én comfort. De ruime achtertuin is onderhoudsvriendelijk en perfect gepositioneerd op het zuidwesten, waardoor u tot in de avond kunt genieten van de zon.
Een echte blikvanger is de overkapping, waarmee u eenvoudig beschutting creëert tegen felle zon of een zomers buitje. Of u nu wilt ontspannen met een goed boek, dineren met familie of vrienden, of simpelweg tot rust komen in uw eigen buitenruimte: deze tuin biedt het allemaal.
De combinatie van hoogwaardige materialen, slimme indeling en luxe afwerking zorgt voor een stijlvolle, moderne sfeer waarin het heerlijk toeven is het hele jaar door.
Bijzonderheden
- Instapklare woning met hoogwaardige afwerking;
- Moderne keuken met luxe inbouwapparatuur;
- 5 Slaapkamers;
- Energielabel B volledig geïsoleerd (dak, vloer en muren);
- Betonvloeren op beide verdiepingen;
- Grote raampartijen voor veel natuurlijk licht;
- Zuidelijk gelegen achtertuin met veel privacy;
- Kindvriendelijke buurt;
- Veel wooncomfort en multifunctionele indeling.
Deze woning combineert comfort, stijl en functionaliteit op een ideale locatie. Maak snel een afspraak voor een bezichtiging en ervaar het zelf!