Beschrijving

Deze charmante tussenwoning is de ideale kans voor wie op zoek is naar een comfortabele, moderne leefomgeving met een adembenemend uitzicht. De fijne tuin gelegen op het zuiden biedt volop zon en een prachtig panoramisch zicht, de perfecte plek om te ontspannen of te genieten van het buitenleven.

Met drie comfortabele slaapkamers is deze woning perfect voor een gezin, starters of mensen die op zoek zijn naar rust en ruimte. Deze betaalbare tussenwoning combineert comfort, moderniteit en een spectaculaire ligging, waardoor het een zeldzame vondst is op de woningmarkt.

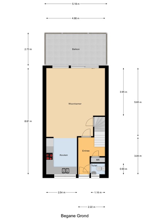
Begane grond:
Entree, hal, met toiletruimte, meterkast, trapopgang naar de eerste verdieping, toegang tot de keuken en de woonkamer.

Keuken:
Een prachtige moderne woonkeuken, welke voorzien is van ingebouwde vaatwasser, combi-oven, 4-pits inductiekookplaat en afzuigkap. 

Woonkamer:
Het uitzicht vanuit de woonkamer is werkelijk elke tijd van het jaar een genot om naar te kijken. Het veranderende panorama blijft dag in dag uit boeien, wat zorgt voor een rustgevende en inspirerende woonervaring. De woonkamer is voorzien van een mooie houtenvloer en spachtelputz wanden. Ook is er schuifpui naar een aangrenzend mooi balkon op het zuiden.

Eerste verdieping
Op de eerste verdieping bevinden zich drie ruime slaapkamers, ideaal voor een gezin met kinderen, een thuiskantoor of logeerkamer. Ook de badkamer is vanaf de overloop bereikbaar. Via de vlizotrap heb je toegang tot de tweede verdieping, handig voor het opbergen van seizoensspullen of speelgoed dat even uit het zicht mag.

Badkamer
De badkamer is keurig afgewerkt en van alle gemakken voorzien. Denk aan een comfortabele douchecabine, een modern wandtoilet, een wastafel met opbergruimte en een designradiator – perfect voor het hele gezin om de dag fris te beginnen of ontspannen af te sluiten.

Bergzolder:
Er is een ruime bergzolder met de opstelplaats van de CV-ketel (Remeha 2016) en de unit voor de mechanische ventilatie. Een ideale plek om uw spullen op te bergen.

Souterrain
Het souterrain biedt volop extra leefruimte en is multifunctioneel in te richten. Denk aan een speelruimte voor de kinderen, een thuisgym of een handige opslagplek voor seizoensspullen. Ook is er een extra keuken aanwezig ideaal voor bijvoorbeeld feestjes, hobbykoks of als praktische aanvulling op de hoofdkeuken. Daarnaast vind je hier de aansluitingen voor de wasmachine en droger, zodat je alles netjes en uit het zicht kunt houden. Deze ruimte is eenvoudig te wijzigen naar een slaapkamer of extra woonkamer.

Tuin:
De verzorgde tuin op het zuiden biedt een landelijk uitzicht, waardoor je kunt genieten van lange zonnige dagen en prachtige zonsondergangen. Het is een ideale plek voor ontspanning en omringd door de rust en schoonheid van de natuur.

Kenmerken